Project Description
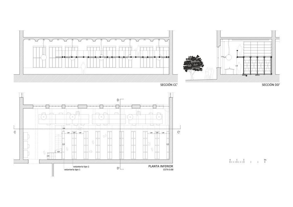
Se plantea el diseño y desarrollo de un mueble para la biblioteca de la Facultad de Ciencias Políticas y Sociología de la Universidad de Granada, que duplique el espacio disponible destinado a libros y revistas, mediante la construcción de un espacio en altura y funcionando como estantería en la planta inferior.
El conjunto se compone de varias piezas independientes entre sí, que se ensamblan y permiten un montaje en seco y posterior desmontaje de todo el conjunto cuando la necesidad de dicho espacio desaparezca o las exigencias sean otras. Es fabricado en taller, lo que permite un trabajo de mayor calidad y precisión, además de reducirse los tiempos de ocupación de la biblioteca, interfiriendo lo mínimo posible en su normal funcionamiento.
Amplía la información en el siguiente enlace:
Universidad de Granada



